
Nasce a Roma il 30 agosto del 1942. Nel 1961 consegue la maturità classica presso il Liceo Mamiani e nel 1961 si iscrive alla Facoltà di Architettura di Valle Giulia. Gli anni dell’università sono esaltanti, difficili e burrascosi; rievocandoli in un convegno sulla formazione degli architetti romani negli anni ‘60, così li descrive: “… fummo una generazione che si formò opponendosi alla formazione, un biennio d’antan e un triennio di fermento utile e di confusione creativa”. Da studente apre lo Studio “Question Mark” con Francesco Cellini, Nicoletta Cosentino, Giovanna De Santis, Piero Gandolfi, e Corrado Giannini: una “cantera” in contatto con lo Studio GRAU (Gruppo Romano Architetti Urbanisti) formato da giovani laureati impegnati nella partecipazione a concorsi e nella ricerca di un linguaggio svincolato dalla formazione accademica. Svolge il tirocinio professionale nello studio dei professori Carlo Melograni, Leonardo Benevolo e Tommaso Giura Longo dove comprende, tra numerosi altri importanti concetti, che l’università non insegna la professione, ma fornisce gli strumenti per apprenderla sbagliando e correggendo.
Si laurea nel 1968 in una seduta agitata: un “collettivo” di studenti contesta la sua tesi su teoria e metodo della composizione architettonica accusandola di “astrattezza elitaria”, incurante delle problematiche del movimento studentesco e delle lotte operaie. Dopo aver superato l’esame di stato, nel 1969 si iscrive all’Ordine con la matricola n. 2222.
Collabora con lo Studio di Pier Luigi Nervi che, nel marzo del ’70 gli rilascia un’attestazione in cui si dichiara che: “… ha collaborato sia all’impostazione sia allo sviluppo di importanti progetti dimostrando particolari doti di sensibilità, preparazione, gusto, competenza ed un notevole senso di responsabilità”. Lasciato lo Studio Nervi, affronta la ricerca del suo spazio nella professione. Dal ‘71 al ‘74, è nominato Responsabile a contratto dell’Urbanistica e Edilizia privata (UT) del Comune di Guidonia Montecelio (RM).
Nel 1972, con Piero Somogyi e Franco Tegolini, apre lo Studio STEMM. In associazione progettano il Piano Particolareggiato (PP) della borgata Argentiera del Comune di Sassari e il Piano Regolatore Generale (PRG) del Comune di Fiano Romano (RM). Nel 1974 redige il Piano di Fabbricazione di Anticoli Corrado (Roma) e, nel 1978, il PRG. Di questa opera Ludovico Quaroni, nel saggio “Un paese immaginario: Anticoli Corrado” ha scritto: “Nel ‘74 è stato redatto da Moretti il PdF per Anticoli che protegge molto bene il Centro Storico. Quattro anni dopo Moretti, nel passaggio dal PdF al PRG, ha affinato le idee già espresse. Il PRG sembra particolarmente limpido, e sfrutta tutte le ampie risorse date dai terreni e dalle vedute dei Colli.”.
Nel 1988 lascia lo studio STEMM per avviare l’attività professionale individuale durante la quale redige ventinove strumenti urbanistici di livello dal territoriale all’attuativo e quarantadue progetti commissionati da privati, Società e Pubbliche Amministrazioni. Inoltre, si impegna per lunghi anni nella rappresentanza professionale: è consigliere dell’Ordine degli Architetti PPC di Roma e provincia (bienni 1979-80, 1981-82 e 1997-98) e vicepresidente per il biennio 1992-94; è vicepresidente del Consiglio Nazionale Architetti per il triennio 1982-85. Come direttore della rivista AR, con i suoi articoli di fondo in difesa della professione merita l’apprezzamento di molti colleghi, indipendentemente dalla loro posizione ideologica e culturale.
Dal 1985 al 1988 è nominato nel Comitato Consultivo CEE per l’applicazione della Direttiva Europea sull’architettura e dal 1989 al 1992 è nominato esaminatore esterno nella commissione di laurea in architettura presso il Politecnico del Trinity College di Dublino (Irlanda). Per dieci anni, dal 1980 al 1990, è membro della Commissione Consultiva Edilizia del Comune di Roma.
Nel 2004 è consulente a supporto dell’Ufficio Tecnico (UT), incaricato dal Comune di Fiano Romano (RM) e dal 2005 al 2009 è nominato responsabile a contratto dell’UT Settore Urbanistica, incarico accettato e che riesce a conciliare con la libera professione.
Nel 2010 è chiamato dal Comune di Capena (RM) come coordinatore a contratto del Dip. 3° – Area Tecnica dove, oltre la normale attività di un ufficio tecnico comunale, si confronta con le più disparate problematiche, dalla raccolta dei rifiuti alle inondazioni e, ovviamente, con gli interventi della Magistratura sull’operato dell’Ente locale stesso.
Nel 2015 per intervenute disposizioni legislative, l’incarico non gli può essere rinnovato e torna alla libera professione. Da quel momento l’impegno principale, grazie all’esperienza accumulata sul campo, consiste in attività di consulenza. Se gli si chiedesse quali siano le opere più importanti – o da lui più amate – della sua attività, risponderebbe “… certamente … quelle in cui ho potuto constatare una più che piena soddisfazione della committenza e dell’utenza”.
Tra queste è il recupero dello stabilimento SPES, in via del Campo Boario a Roma, finalizzato alla realizzazione della Direzione Generale ITALCABLE, iniziato nel 1986 e terminato nel 1989. Un intervento complesso sul piano strutturale, tecnologico, distributivo e formale. L’idea guida ha due obiettivi: il primo, un’organizzazione dell’esterno che dialoghi con il contesto (Mura Aureliane, Porta S. Paolo, Piramide Cestia, zona paleoindustriale Ostiense); il secondo, un’organizzazione della corte interna che, con il linguaggio dei centri direzionali e con un gioco di specchi, risulti ariosa e amplificata per gli ambienti che vi si affacciano.
L’opera è apprezzata dalla Committenza; in una riunione con il CdA ITALCABLE, l’ing. Mario Barbanti, direttore dei servizi tecnici, riferisce “… l’architetto Moretti ci ha fatto capire che le cose belle possono funzionare bene e costano quanto quelle brutte che funzionano comunque male per chi ci deve vivere e lavorare”. Da allora nasce un rapporto di fiducia che gli fa ottenere dal gruppo TELECOM altri importanti incarichi. L’intervento è apprezzato da Bruno Zevi che, dopo l’assegnazione del premio INARCH Lazio 1990, lo pubblica su L’architettura – Cronache e Storia e, in seguito, nel volume Linguaggi dell’architettura contemporanea dove afferma che “… l’edificio di Moretti è assimilabile, sia pure in modo assai differenziato, all’atmosfera di Richard Meier”.
Altra, nel 1998, è la ristrutturazione e l’ampliamento dell’Ospedale S. Lucia a Roma, frutto di una procedura complessa che richiede una deroga alle norme del PRG e che è progettata e realizzata in più fasi per consentire che l’attività della struttura non subisca interruzioni. La soddisfazione è il riconoscimento degli utenti, del personale e della committenza, per aver realizzato un “hotel a 5 stelle della riabilitazione psicomotoria”, dove l’architettura non è solo un contenitore di funzioni, ma fornisce anche un contributo attivo, psicologico e fisico, alla terapia dei pazienti e al lavoro degli operatori sanitari.
Il giornalista Andrea Vianello, nel libro Ogni parola che sapevo, nel narrare la sua esperienza così descrive il passaggio dal Policlinico alla S. Lucia per la riabilitazione post operatoria: “Immaginavo una struttura grigia e penitenziale, un casermone postsovietico dove gente come noi, i ‘colpiti’, restavano rinchiusi agli occhi del mondo, invece la mia barella si infila in un ascensore modernissimo, un grande blocco di vetro con tutte le facciate trasparenti, che mi porta al sesto piano in bella vista. Sono finito in un laboratorio tecnologico della Spectre. Ma una Spectre buona. Tutto bianco, tutto pulito, tutto rasserenante. La luce, la cosa che mi travolge più felicemente è la luce, tanta luce filtra tra le fessure delle veneziane alle grandi finestre, quasi a sottolineare l’inizio di una promessa”.
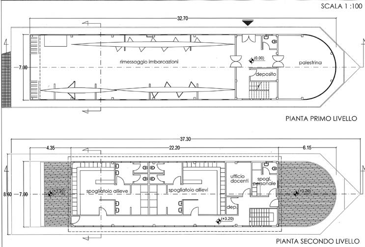
La terza è del 2003 quando è incaricato dall’Università degli Studi di Roma “Foro Italico” della realizzazione di un galleggiante sul Tevere destinato alla pratica del canottaggio; analoga struttura dell’Accademia di Educazione Fisica esistente fin dal 1927, è andata perduta a seguito degli eventi bellici. L’incarico presenta un motivo di interesse, dal doversi misurare con il Complesso del Foro Italico. L’opera, ricadente in area con vincolo “Valle del Tevere”, impone un attento studio del linguaggio per la “ricostruzione” di un manufatto non più esistente e con insufficiente documentazione fotografica.
Con evidente autoironia, dichiara di essere orgoglioso di aver potuto completare il Foro Italico e affiancare una sua opera alla Palestra della Scherma del suo illustre omonimo. Come progettista, fiumarolo e canottiere, riceve i complimenti di amici e colleghi canottieri che vedono l’opera dal fiume. Un gratificante segno di soddisfazione di un’utenza molto particolare.
piazza Manfredo Fanti 47
00185 Roma
Telefono: 06 97604560
Email: protocollo@architettiroma.it
PEC: ordine@pec.architettiroma.it
C.F: 80053110583
| Lunedì | 09:00 - 13:00 14:30 - 16:30 |
| Mercoledì | 09:00 - 13:00 14:30 - 16:30 |
| Venerdì | 09:00 - 13:00 |