
Nasce a Roma il 13 marzo 1939, si laurea alla Facoltà di Architettura dell’Università di Roma “Sapienza” nel 1966 con la tesi “Curia generalizia dei Padri Domenicani all’Aventino”, relatori Bruno Zevi e Luigi Pellegrin.
Negli anni dell’università collabora come disegnatore presso diversi Studi di architettura, tra i quali, quelli di Italo Insolera, Manfredi Nicoletti, Leo Calini. Dopo l’abilitazione si iscrive all’Albo dell’Ordine degli Architetti di Roma e del Lazio con la matricola n. 1976 e dal 1965 al 1978 svolge l’attività professionale presso l’Impresa Lamaro Appalti SpA di Roma.
Il Gruppo Lamaro è una storica immobiliare e, al contempo, impresa di costruzioni operante prevalentemente nel settore dell’edilizia residenziale che nei primi anni ‘70, fra le prime in Italia, in piena vigenza della legge 167/62, intuisce di intraprendere un processo di aggiornamento tecnologico della produzione edilizia con sistemi costruttivi a tunnel, banches e predalles, prefabbricazione a terra, e sistemi analoghi.
Nell’impresa, a gestione familiare, ricopre via via tutti i ruoli tecnici a supporto dei cantieri, dall’ufficio tecnico per la progettazione esecutiva a quello per gli approvvigionamenti, fino alla direzione tecnica dei cantieri e alla rappresentanza presso le organizzazioni di categoria. Con questi compiti contribuisce a realizzare, con molta autonomia e alla dipendenza gerarchica del solo titolare, ing. Silvano Toti, oltre a diversi interventi, soprattutto insediamenti di Piani di Edilizia Economica e Popolare (PEEP) di Roma: Tuscolano, Spinaceto, Casal de’ Pazzi, Tiburtino sud, Giardinetti e Laurentino, con la costruzione di oltre tremila alloggi con sistemi dapprima tradizionali e poi industrializzati, in collaborazione con altri progettisti, tra cui Nicola Di Cagno, F. Moroni, Francesco Battimelli, Pietro Barucci, U. Sacco, Carlo Chiarini, Fabio Dinelli, Alessandro De Rossi, A. Carè.
Acquisisce una decisiva esperienza dal 1972 attraverso un ripetuto stage presso un’importante impresa francese dove apprende le tecniche costruttive dell’edilizia industrializzata e, soprattutto, la gestione tecnico-economica dei grandi cantieri. Anche grazie a questa esperienza, nel 1975, Lamaro Appalti si aggiudica tre lotti del PdZ Roma – Laurentino per la costruzione di settecento alloggi e relativi edifici ponte.
Successivamente, dal 1978 al 1994, opera come dirigente presso la Todini Costruzioni Generali SpA (ex SOGESTRA SpA) di Roma. Tale impresa, già affermata nel campo delle grandi opere stradali, intende estendere la sua attività nel ramo dell’edilizia pubblica. In tale settore, a capo della Sezione Edilizia, con responsabilità tecniche e contrattuali, realizza numerosi interventi di opere pubbliche, quali le case circondariali di Teramo e di Napoli – Secondigliano e la palazzina comando della Scuola Allievi Ufficiali della Guardia di Finanza a L’Aquila, gran parte della ristrutturazione del Comando Generale dell’Arma dei Carabinieri di Roma, la Cartiera di Alanno (PE) per la Scott, alloggi di servizio per Poste Italiane e l’ufficio postale di Roma – Belsito. In queste attività collabora con Sergio Basile, Francesco Fioravanti, Alberto Gatti, Diambra Gatti De Santis, F. De Sandro, Alfredo Lambertucci, P. Moroli, Giorgio Peguiron, Paolo Portoghesi e Bruno Scafi, oltre che con strutturisti quali S. Albanesi, C. Benedetti, Giorgio Caloisi, V. De Benedetti, Antonio Maffey, Antonio Michetti, Francesco Sylos Labini e lo Studio Sintagma di Perugia.
Nel 1993 passa alla Todini Finanziaria SpA quale direttore tecnico centrale per il controllo di gestione di tutte le Società di costruzione del Gruppo nonché per la supervisione, ricerca e sviluppo di iniziative nel campo immobiliare. In questo periodo il Gruppo è classificato tra le prime dieci imprese italiane di costruzione. In questa posizione segue lo sviluppo di varie iniziative immobiliari quali il centro direzionale di Mestre (VE), un resort a Todi, il complesso monumentale di Villa Catena a Poli (RM), un intervento residenziale ad Aprilia (RM) con l’operato di architetti quali Renzo Piano e Francesco Cellini.
Dal 1995 intraprende la libera professione creando, con il figlio Roberto, lo Studio Morziello Architetti Associati. Lo Studio opera per clienti privati, come per l’ing. Alberto Ginobbi, ma soprattutto per Amministrazioni locali, quali i Comuni di Ceccano (FR), Pomezia (RM), Ardea (RM), Anguillara Sabazia (RM), Roma, ed Enti pubblici, come la CCIAI di Roma, con commesse diverse: progettazione, coordinamento, direzioni tecniche e dei lavori, consulenze, valutazioni immobiliari anche importanti, partecipazioni di rappresentanza in CdA e CT di consorzi, comitati, e altro.
Lo Studio interviene a Ceccano (FR) per il recupero dell’area e del manufatto dell’ex Cartiera Savoni con la creazione di un centro servizi, finanziato dalla CEE – realizzazione che ha conseguito un premio – oltre ad importanti progetti di edilizia residenziale, asili e scuola elementare, giardini pubblici, lottizzazioni e stabilimenti industriali. Un significato particolare riveste la perizia estimativa, commissionata dalla CCIAA di Roma, per la valutazione di un lotto di terreni, di circa 65 ha per la localizzazione del Polo tecnologico di Roma, di cui in seguito ha svolto la funzione di coordinamento dei progettisti A. Anselmi, E. Cellini e C. Saratti per l’Accordo di Programma con il Comune di Roma.
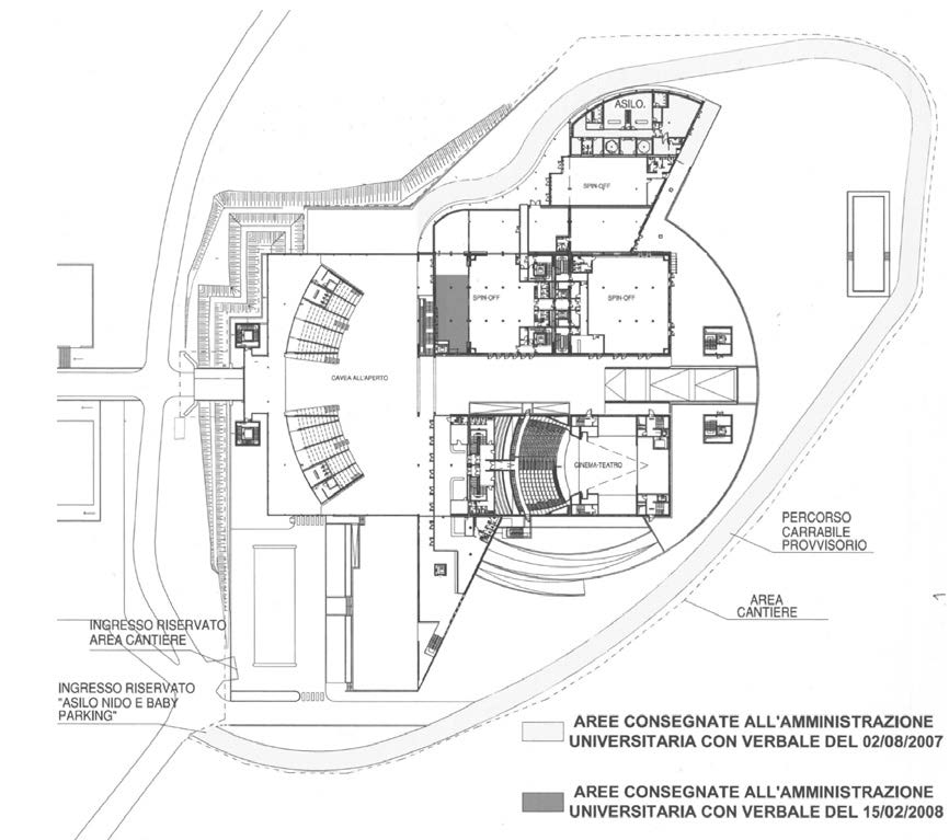
Da luglio 2000 è cooptato dall’ATI Impregilo SpA – Colombo SpA, come direttore tecnico del cantiere dell’Auditorium di Roma, progettato da Renzo Piano, per sovraintendere l’esecuzione giornaliera e diretta dei lavori, il coordinamento di tutte le attività tecniche amministrative e di uno staff operativo di 35 addetti, per l’elaborazione della cantierizzazione del progetto esecutivo, con l’impiego di 16 architetti, allocati in una struttura foranea e la professionalità di F. Braga, C. Benedetti, S. Tremi Proietti, S. Lenzi. Il complesso, in funzione dal 21 aprile 2002 (sala 750 e sala 1200) e 21 dicembre 2002 (sala 2500), è stato ultimato il 16 giugno 2003 e collaudato il 4 dicembre dello stesso anno. Nel corso dei lavori l’Amministrazione ha richiesto ed ottenuto dall’ATI un’accelerazione dei tempi contrattuali di esecuzione di circa 12 mesi.
Nel 2003 crea la MOMO ST Arch Srl – Servizi Tecnici per l’Architettura – Società di Ingegneria. Con tale strumento, tra il 2003 e il 2007, esegue per conto della BOCOGE SpA, del Gruppo Impregilo Edilizia, concessionaria dell’UNICAL – Università della Calabria e dell’Università degli Studi di Messina, la cantierizzazione dei progetti esecutivi della Facoltà di Ingegneria di Messina, progettata da M. Rebecchini, dell’Edificio Multifunzionale di piazza Vermicelli e del Centro Didattico Multifunzionale a Rende (CS). Per il compimento delle due Concessioni svolge anche l’incarico di direzione dei lavori.
Nel 2007, con la Salini SpA di Roma, incaricato della direzione tecnica del cantiere, studia, con un gruppo di professionisti, la gara per l’esecuzione dei lavori della “Nuvola” di Massimiliano Fuksas, classificandosi al terzo posto su sette raggruppamenti invitati.
Nel 2008, ancora per la Salini, coordina la stima delle opere di finitura del Centro culturale e Millennium Tower in Nigeria progettato da Manfredi Nicoletti, in corso di esecuzione.
Tra il 2009 e il 2010 la Società assume l’incarico di cantierizzazione del progetto esecutivo, elaborato dallo studio Favero & Milan, nonché di direzione del cantiere del Museo della Cultura e della Tradizione del Popolo libico, a Tripoli (Libia).
Nel 2010, su richiesta della CGIL di Roma, ha espresso un parere tecnico, sulla fattibilità tecnico-economica del progetto di ristrutturazione della Scuola di formazione Luciano Lama ad Ariccia (RM) redatto da Studio Seste degli architetti Aymonino di Roma.
Nel 2011 riceve dal RUP della Regione Calabria, ing. D. Pallaria, incarico di assistenza per l’esame e l’approvazione del progetto esecutivo del Palazzo Sede della Regione Calabria a Catanzaro, elaborato dallo Studio Valle di Roma, già affidato all’Impresa Busi di Bologna.
piazza Manfredo Fanti 47
00185 Roma
Telefono: 06 97604560
Email: protocollo@architettiroma.it
PEC: ordine@pec.architettiroma.it
C.F: 80053110583
| Lunedì | 09:00 - 13:00 14:30 - 16:30 |
| Mercoledì | 09:00 - 13:00 14:30 - 16:30 |
| Venerdì | 09:00 - 13:00 |